LIVEHOUSE SOUNDNOTE NAGOYA(サウンドノート名古屋)さんのプロフィール画像

LIVEHOUSE SOUNDNOTE NAGOYA(サウンドノート名古屋)さんのイラストまとめ


(有)Project-t運営。キャパシティー250人、どこよりも最新鋭装備を備えているライブハウス。ステージ高90cmで集客が多くても演者が隠れません。背面LEDディスプレイ完備。各種配信も利用可能。
livehouse-soundnote-nagoya.info

フォロー数:3216 フォロワー数:3010

当社所属アーティスト白石うらんがそうそうたる顔ぶれの中にランクインしました。
今週土曜日よりUSENの最強チャンネルA26にて放送開始です‼️ https://t.co/eYpaXboLir

6 11

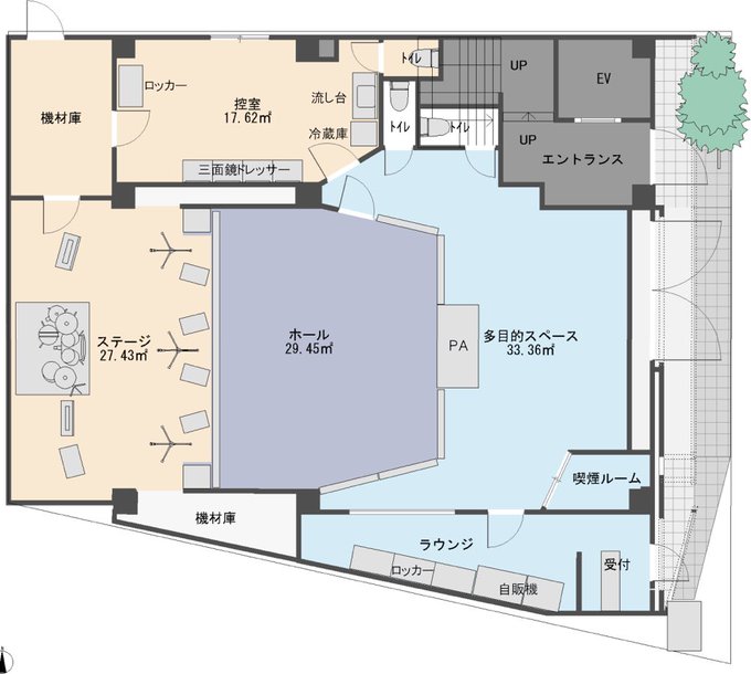
改修でアイドルなどの平行物販が難しくなったとお考えの皆さん!
改悪にならないよう考え抜いています。
なんと、PAが車輪付きで可動し

250人収容
120人+多目的スペース(防音)

か、ライブによって選べるシステムとなりました!
こんなふざけたライブハウス、ない!

31 101